Infrastruttura e mobilità
Committente: Studio Stefano Rossi – per conto di “Autostrada dei Fiori”
Attività: Progettazione esecutiva per l’adeguamento statico e sismico del viadotto Branzola Nord
L'intervento riguarda il rinforzo delle sottostrutture, la sostituzione degli appoggi con isolatori sismici, l'incamiciatura in c.a. dei traversi e il risanamento della soletta con malta fibrorinforzata, nel rispetto delle NTC2018.
Viadotto Branzola Nord – A6 Torino–Savona




Collegamento Autostradale da Dalmine a Gaggiolo e opere ad esso connesse




Committente: Studio Stefano Rossi – per conto di “Autostrada Pedemontana Lombarda S.p.A.”
Attività: Variante Tratta D – Collegamento autostradale Dalmine–Como–Varese–Valico del Gaggiolo:
Progetto definitivo di opere d’arte maggiori (9 cavalcavia a sezione mista) con luci fino a 90 m e larghezze tra 13,00 e 17,40 m, su appoggi con isolatori elastici. Fondazioni su pali, con attenzione alla salvaguardia della falda e all’esclusione dei fanghi bentonitici in aree sensibili. Progetto sviluppato anche in ambiente BIM per una gestione integrata.
Cavalcaferrovia Ferruccio Parri
Committente: Studio Stefano Rossi – per conto di “Comune di San Donato Milanese”
Attività: Manutenzione Straordinaria del cavalcaferrovia Via Parri
Progettazione di interventi di rifacimento dei cordoli e barriere, ripristino delle superfici, sostituzione degli appoggi e rinforzo di travi in c.a. con fibre di carbonio. Sono previsti, inoltre, anche interventi di miglioramento del drenaggio e rifacimento della pavimentazione stradale e ciclabile.




Gallerie “Carmensita” e “Lago Turchino” – S.S. 301 del Foscagno
Committente: Studio Stefano Rossi – per conto di “ANAS Lombardia”
Attività: Lavori di Manutenzione Programmata per il ripristino strutturale delle gallerie "Carmensita" e "Lago Turchino" - S.S. 301
Progettazione esecutiva per il ripristino strutturale delle gallerie "Carmensita" (566 m) e "Lago Turchino" (358 m) sulla SS301 del Foscagno (SO): interventi su pilastri, travi, solai e pareti, impermeabilizzazione, adeguamento drenaggi, rifacimento pavimentazione, protezione delle strutture in c.a. dall’azione dei sali, sostituzione barriere di sicurezza e realizzazione di cunette e muri in c.a.




Committente: Studio Stefano Rossi – per conto di “ANAS Lombardia”
Attività: Progettazione esecutiva per l’intervento di miglioramento e messa in sicurezza della SS301 del Foscagno (SO)
Ampliamento della sede stradale (km 17+500 – 19+000), ripristino e consolidamento di muri di sostegno (km 8+300 – 20+200 e 23+200 – 36+000), ricostruzione attraversamento idraulico (km 31+900), installazione e sostituzione di barriere di sicurezza con realizzazione di cordoli di ancoraggio. Intervento in contesto montano con condizioni climatiche critiche.
Lavori di ampliamento e rettifica tracciato sulla S.S. 301 "del Foscagno"




Viadotto dei Parchi – Tangenziale Est di Milano (A51)
Committente: Studio Stefano Rossi – per conto di “Milano Serravalle S.p.A.”
Attività: Progettazione esecutiva per l’intervento di miglioramento e messa in sicurezza della SS301 del Foscagno (SO)
Verifiche statiche e sismiche delle campate metalliche e delle pile del viadotto in acciaio-calcestruzzo presso lo svincolo di Rubattino. Analisi eseguite per la valutazione della capacità portante e delle condizioni strutturali.




Committente: Studio Stefano Rossi – per conto di “Erre.Vi.A. s.r.l.”
Attività: Progettazione esecutiva di una passerella ciclopedonale a Vergiate
Progettazione esecutiva di una passerella ciclopedonale di 27 metri su campata unica, sopra la linea ferroviaria Milano–Arona. Struttura in acciaio saldato a via inferiore, con impalcato prefabbricato assemblato in opera, pensata per minimizzare l’impatto visivo e garantire durabilità e sicurezza secondo il metodo agli stati limite.
Passerella ciclopedonale a Vergiate




Committente: Studio Stefano Rossi – per conto di “Società di Progetto BreBeMi S.p.A”
Attività: Progettazione esecutiva di portale segnaletico
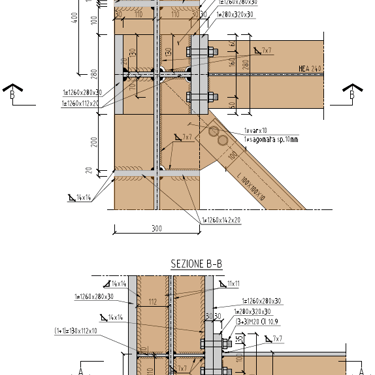
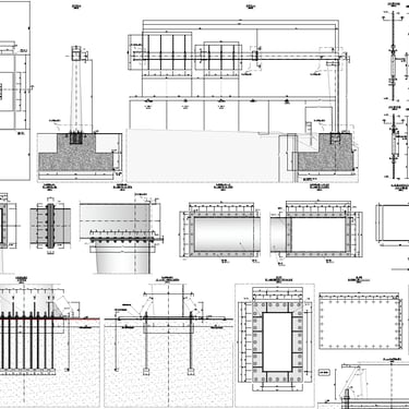
Progettazione di una struttura a bandiera in acciaio zincato per supporto segnaletico autostradale. Composta da montante tubolare alto 7 m e trave a sbalzo di 19,4 m, è fondata su plinto in c.a. e dimensionata per resistere ai carichi del vento e del traffico.
Portale segnaletico A4–A35 – Interconnessione BreBeMi






